Vai al contenuto
LAURA DE IUDICIBUS
Architettura di Interni
About
Works
Contacts
Cerca
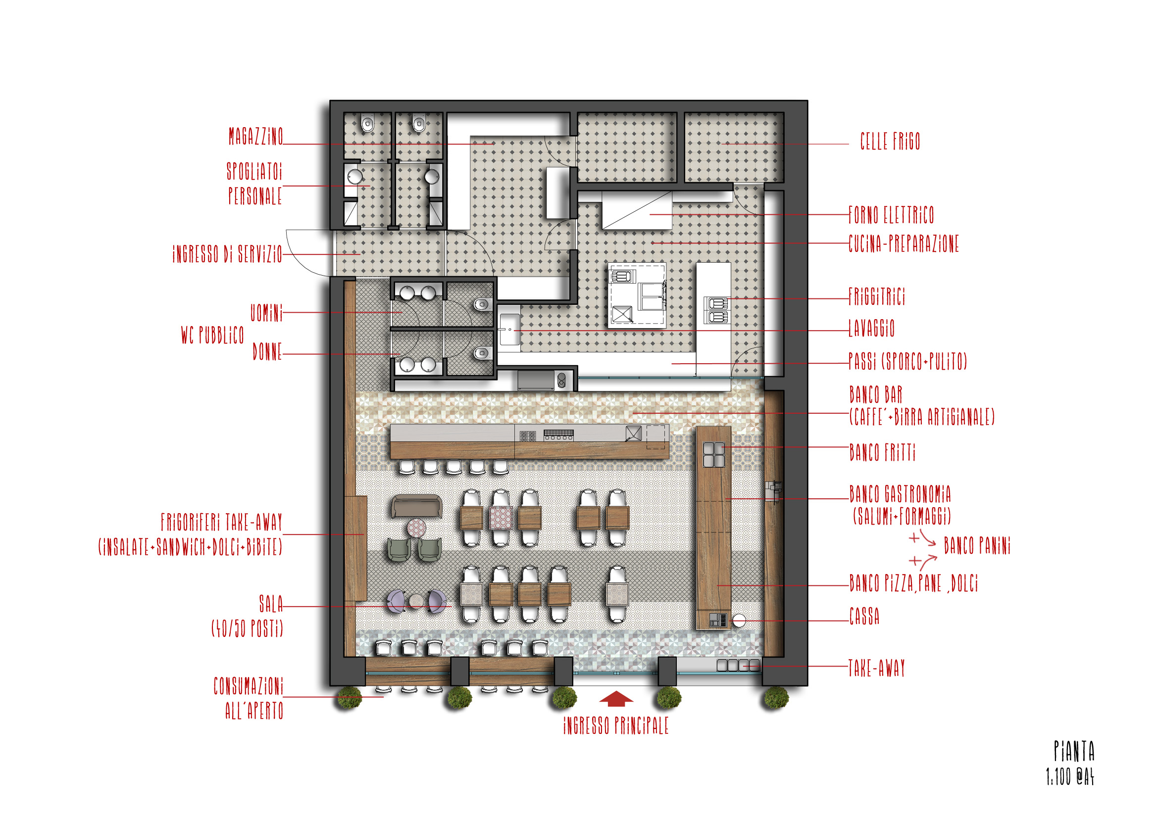
PANIFICIO PANENERO
Concept per un locale panificio take away a Londra
50mq coperti
Novembre 2013
# OpenStudio e Dario Laurenzi Consulting
Caricamento commenti...
Scrivi un Commento...
E-mail (Obbligatorio)
Nome (Obbligatorio)
Sito web
Abbonati
Abbonato
LAURA DE IUDICIBUS architettura di interni
Registrami
Hai già un account WordPress.com?
Accedi ora.
LAURA DE IUDICIBUS architettura di interni
Abbonati
Abbonato
Registrati
Accedi
Copia shortlink
Segnala questo contenuto
Visualizza articolo nel Reader
Gestisci gli abbonamenti
Riduci la barra