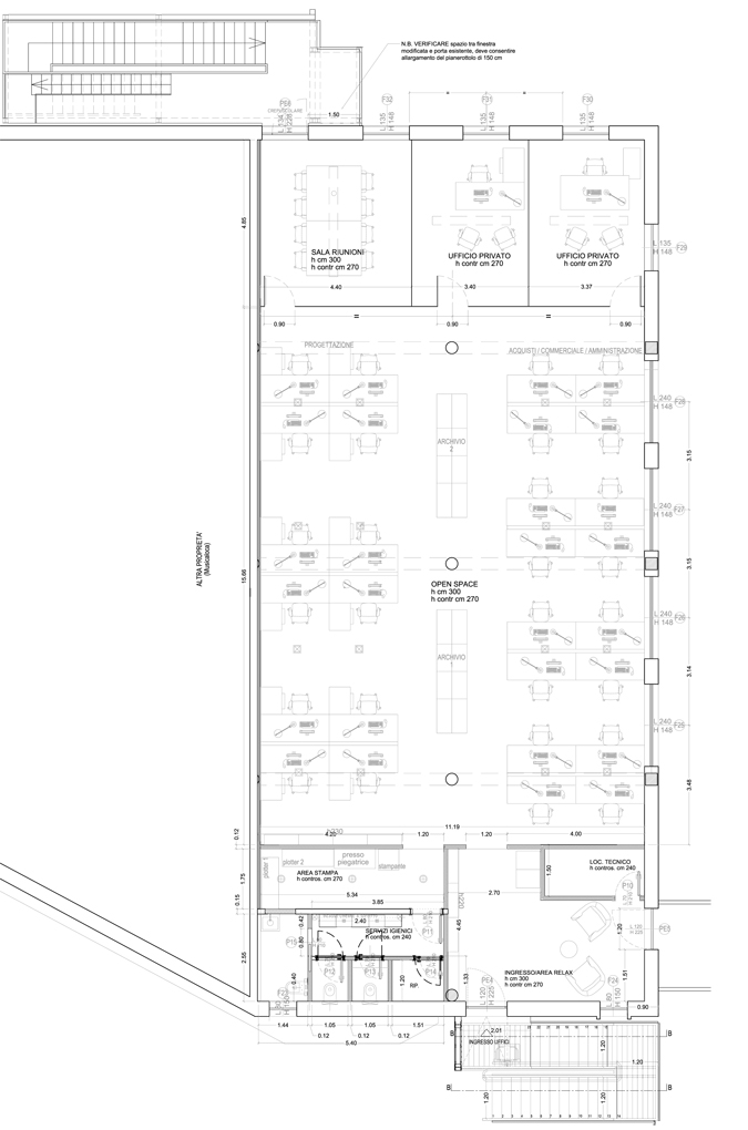
Ristrutturazione di un capannone industriale come sede di produzione e uffici della Heinen&Hopman Italia a Santo Stefano di Magra, La Spezia
730mq officina + 285mq uffici
Completamento: Luglio 2019





